Future Classic HQ
Music moves people of all cultures, in a way that doesn’t seem to happen with other animals. Nobody really understands why listening to music – which, unlike various senses of pleasure or food, has no intrinsic value – can trigger such profoundly rewarding experiences.
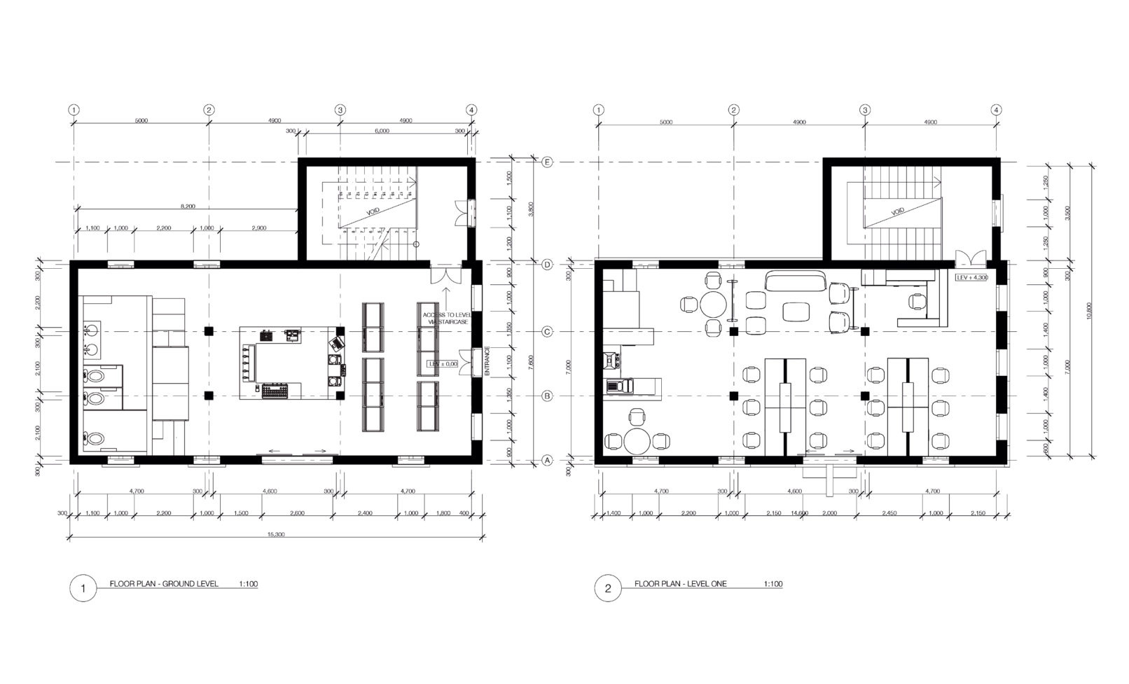
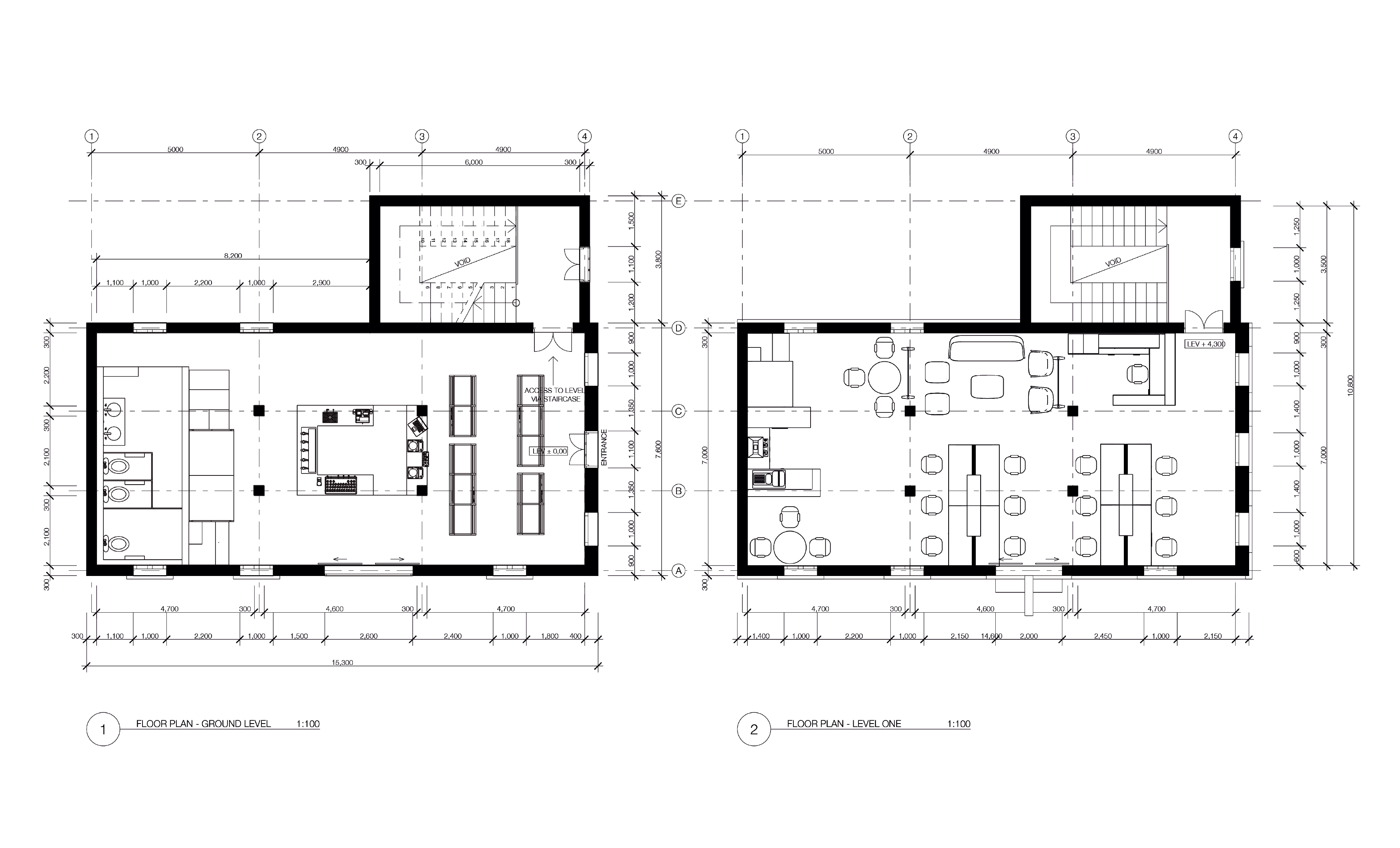
My focus for this project is to create a new home for Future Classic. The building at 47 George Street was a warehouse built in 1842 and in the past used as a store and bank. Today it stands as a vacant lot. Soon it will represent a music utopia for the modern generation. Future Classic represents the love of old but is also constantly addicted to finding something new that excites us.
My aim is to design a space that represents Future Classic taste in lots of different music. They got a reputation for not following anyone particular sound. The design will take on an eclectic contemporary design yet it complements the old structure. Space will heighten senses and the acoustic will literally bring music to your ears.










